
2026 개강
강의업로드
HOME > 합격현황 > 합격수기
| 제목 | |||||
|---|---|---|---|---|---|
| 합격자 (수험번호) | 강*천 (00152) | 합격년도 | 2025년 2회 | 등록일 | 2025.12.19 |
|
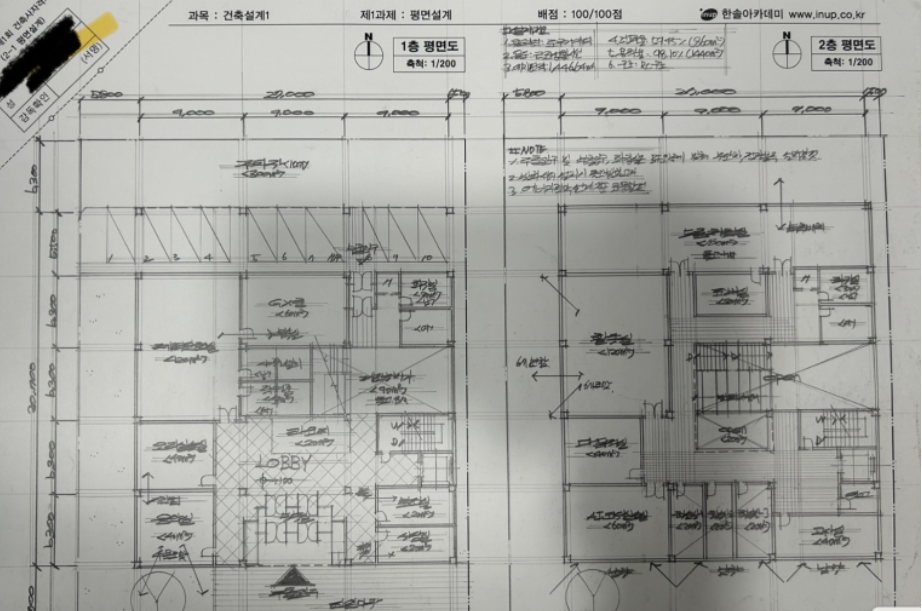
안녕하세요, 이번에 기존에 1,3교시 합격하고 2교시는 한솔 유튜봐와 문제풀이를 신청하여 최종합격하였습니다.
2교시는 프로세스의 대한 문제점이 있다고 생각하여, 처음부터 프로세스를 재정립하였습니다. 또한, 김수원 선생님의 유튜봐를 보면서, 기존 기출문제에 대한 분석을 명확하게 정리하였습니다.
하루에 8시간씩 공부하면서 주말에 1일만 쉬었습니다.
문제를 하루에 두 번씩 풀었고, 1문제에 3시간을 모의고사처럼 풀고 1시간을 풀이를 하였습니다. 또 문제가 부족하면 방위를 바꾸나 지형을 바꿔서 풀었습니다.
작도량을 줄이려고 노력을 많이했습니다. 기존 1:30분 걸리던 작도를 50분 내에 들어가려고 노력했습니다.
도면은 아래와 같이 퀄리티를 유지하려고 노력했고, 김수원 선생님 피드백 대로 주안점과 창문표현을 생략하는 식으로 도면의 명확성을 더 키울려고 했습니다.
긴수험생활을 끝마치면서 한솔학원의 도움이 많이 컸습니다. 뒤돌아보면 모든 노력을 다하여 값진 결과를 얻었다고 생각합니다.
다시한번 한솔학원과 김수원 선생님께 감사드립니다. 앞으로 대한민국 건축사로서 사회에 일조하는 일원이 되겠습니다. 감사합니다. |
|||||
| 이전글 | 멈추지만 않으면 반드시 도착할 수 있는 시험 |
|---|---|
| 다음글 | 3교시 단면, 저는 이렇게 공부했습니다. |