
2026 개강
강의업로드
HOME > 합격현황 > 합격수기
| 제목 | |||||||||||||||||||||||||||||
|---|---|---|---|---|---|---|---|---|---|---|---|---|---|---|---|---|---|---|---|---|---|---|---|---|---|---|---|---|---|
| 합격자 (수험번호) | 백*엽 (50997) | 합격년도 | 2025년 2회 | 등록일 | 2025.12.19 | ||||||||||||||||||||||||
|
저는 4년제 건축공학을 졸업하고 건설회사를 거쳐 공기업에 입사하여 2025년 2회차 건축사 자격시험에 최종합격하였습니다. 최종합격 후 그 동안을 되집어 보니 정말 오랜 시간동안 공부를 했다는 걸 다시 한번 느꼈습니다. 건축사 예비시험을 2008년 합격 후 2009년 처음으로 건축사 자격시험 준비를 하게 되었습니다.
혼자 공부하기에는 무리가 있었기에 한솔아카데미 연계학원(지방)을 다니게 되었습니다. 2009년 처음 치루어 본 시험을 생각해보면 역시나 어렵고 막막한 느낌이였습니다. 학원을 처음 다녔지만 막상 시험은 그리 호락호락하지 않았습니다. 다시 마음을 가다 듬고, 2년 연속 학원을 다니며 첫경험을 바탕으로 2010년 두 번째 시험을 치루었지만 역시나 낙방하였습니다. 2011년 세 번째 시험을 앞두고 학원은 등록하여 공부하였지만, 일을 하면서 공부하는 어려움에 학원도 자주 빼먹고, 과제도 제대로 못하였습니다. 역시나 낙방.. ‘아~~도대체 어떻게 해야할까..’ 자괴감에 빠져 3년째 학원을 다니고 나서 학원 등록을 포기하고 준비도 거즘 포기하였습니다.
2012년 네 번째 시험은 공부를 거즘하지 않고 그 동안 쌓아온 경험치만으로 출제경향이나 파악한다는 생각에 시험을 응시하였습니다. ‘와~~우~ 이건 뭐지?’ 1교시 합격을 덜컥해버린 결과가 나왔습니다. ‘이 시험은 어떻게 해야하지?’ 고민의 시간을 갖게 되었습니다. 아마 이 시기에 정말 나태해진거 같았습니다. 공부를 제대로 하지 않았는데 1과목을 합격했다는 어리석은 생각에 잠겨 그 이후 시험은 아무런 준비도 없이 무의미하게 시험만 계속 치루게 되었습니다. 노력한 사람만이 합격하는 시험이구나라는 걸 그 후 1교시 합격 유예기간(기회)을 모두 소진하고 부활해야하는 시점에 깨닭게 되었습니다. 직장을 다니며 공부는 못하고 시험만 계속 치루고 중간중간 기출문제만 풀어보고 시험을 계속 보다 2023년 2회차 결과 이번엔 2교시 과목합격이 되었습니다.
ㅇ 새롭게 시작한다는 마음으로..
2교시 과목합격 후 생각의 전환이 필요했습니다. 긴 시간동안 나태함에 대한 반성을 하고 다시 마음을 다잡고 2024년부터 새롭게 시작하면서 솔직히 말해 타학원 온라인 강좌를 등록하여 공부도 하게 되었습니다. 2024년 D사, K사 온라인 강좌를 듣고 공부를 했지만 기초가 부족한 제게는 강좌를 따라가기 벅찼습니다. 학원 문제가 극단적이였습니다. 너무 어렵거나 너무 쉽거나 하는 문제들로 인해 머릿속이 복잡하고 공부하는데 기준 설정하기가 너무 어려웠습니다.
ㅇ 한솔아카데미를 믿고 따랐다.
결국 2025년에 다시 한솔 온라인 강좌로 복귀하였습니다. 한솔아카데미 온라인강좌(전과정)를 등록하여 새로운 마음으로 공부를 시작하게 되었습니다. 도면작도부터 다시 시작하고 강사님들이 들려주는 방법을 그대로 따라하기 시작하였습니다. 실제 시험 난이도와 비슷하고 가장 좋았던 건 강사님들의 해설에 가장 만족했습니다. 타 학원보다 준비도 많이 해주시고 디테일까지 설명 해주셔서 좋았습니다. 직장을 다니며 공부해야하는 어려움이 있었지만 나름 스케줄을 작성하였습니다. 퇴근 후 7시부터 새벽 1시까지 온라인강좌를 듣고 문제풀이를 하는 식으로 꾸준히 준비하였습니다. 하지만 2025년 1회차 시험결과 역시나 낙방하였습니다.
ㅇ 포기하지만 말자
2025년 1회차 시험 결과 1,3교시 점수가 각각 40점대와 50점대에 대해 무엇이 문제인지 풀었던 문제들을 다시 꺼내서 재차 풀어보기 시작하였습니다. ‘포기하면 그동안 노력한게 물거품이 된다’는 생각으로 스스로에게 채찍질을 가하며 2회차 시험을 치루었고, 그 결과는 “최종합격”이라는 긴 여정을 마무리 할 수 있었습니다.
ㅇ 기초가 튼튼해야 오래간다.
장수생의 느낌이라 큰 도움이 될 수 있을진 모르겠지만 최근 2년동안 집중해서 공부하면서 느낀 점이 있습니다. 기초가 튼튼해야 건축물이 튼튼하든 저는 기출문제의 중요도에 대해 실감하였습니다. 최근 5개년 기출문제를 기준으로 3회이상 풀어봤습니다. 문제마다의 핵심 포인트가 있고 유형별로 정리하고 저만의 오답노트를 만들었습니다. 문제가 익숙해서 답이 먼저 생각날때는 학원문제와 번갈아 가면서 공부했습니다. 어느 순간 5개년이 아니라 10개년 기출문제까지 공부를하게 되었습니다.
(분석조닝) 대충 알고 있던 법규로는 물제풀이의 한계가 있었습니다. 꼼꼼하게 저만의 법규를 정리하였습니다. 문제풀이 순서에 입각해서 실수한 부분에 대해 정리하고 재차 문제를 풀때마다 실수한 부분을 고쳐나갔습니다. 기출문제 확인과 학원에서 만들어준 문제를 응용하여 지속적으로 훈련했습니다. 문제가 잘 안풀려도 제가 생각하는 대로 풀고 나서 답안을 확인했습니다. ‘아~~왜 이걸 놓쳤지’라는 생각이 들때까지 반복하고 권성만 교수님 강의를 여러번 들어가면 훈련했습니다.
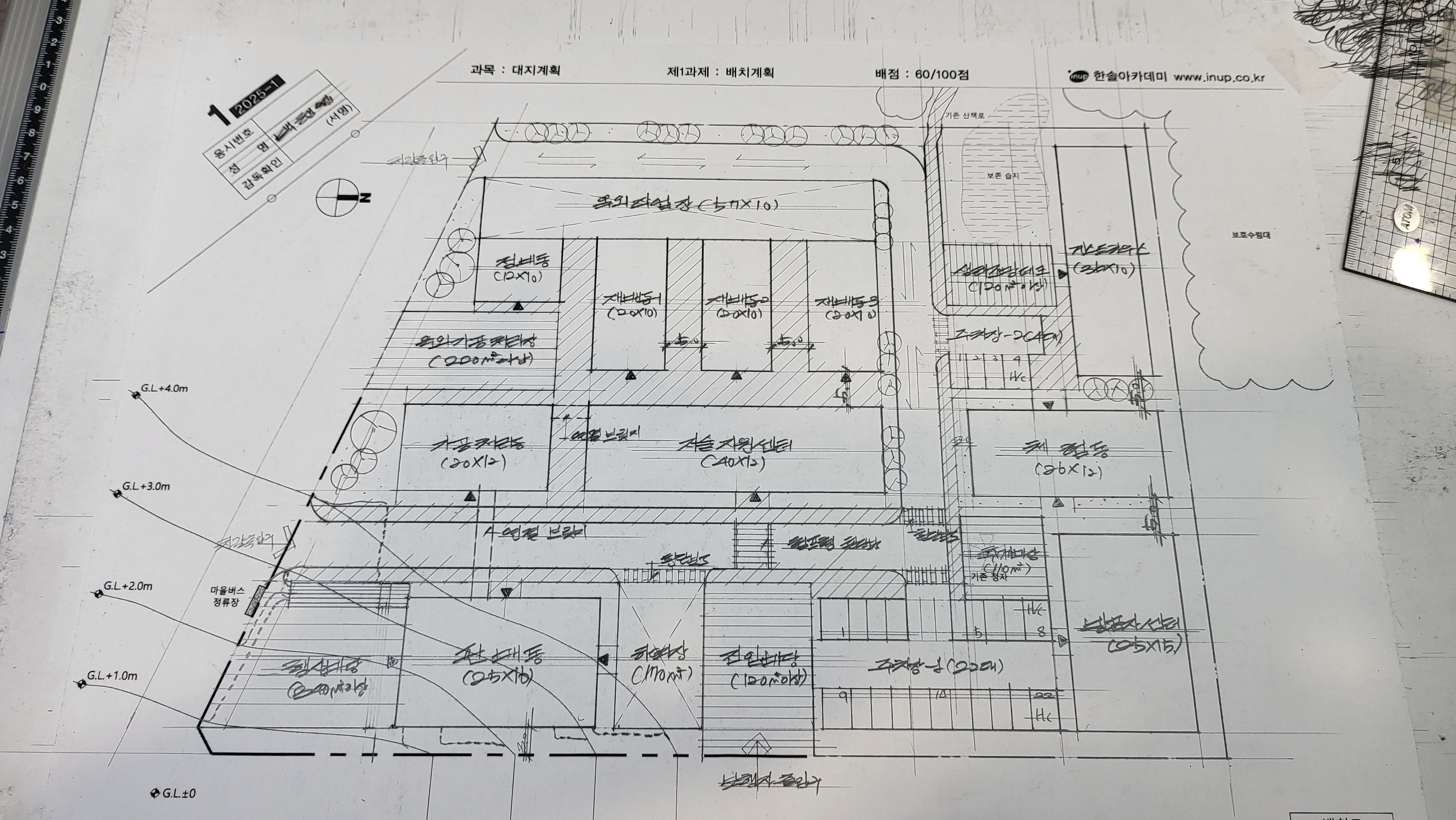
(배치계획) 임덕종 교수님의 강의 내용을 여러번 들어가면서 큰 맥락에서 접근 할려고 노력했습니다. 도로, 정북, 공원, 숲 등 대지의 조건을 먼저 파악하고 문제에서 지시하는 맥락을 이해할려고 노렸했고, 기출문제와 학원문제를 여러번 풀어보았습니다. 가장 중요한 건 답안을 먼저보고 풀려고 하지 않았습니다. 틀려도 좋으니 먼저 제가 생각하는 배치안대로 끝까지 완도해 보고 나서 답안을 살펴보았습니다. 그렇게 반복하다 보니 어느 정도 느낌이 왔습니다. 물론 풀리지 않는 문제도 많았지만 포기하지 않고 저만의 루틴으로 문제풀이를 했습니다.
(평면설계) 앞서 말씀 드렸지만 2교시는 가장 운이 많이 작용해서 붙었지만 작도보단 모듈에 대한 고민을 많이 했습니다. 평면 또한 기출문제를 베이스로 풀어나갔습니다. 해가 거듭될수록 어려워지는 느낌을 받았습니다. 예전보다 요구하는 공간이 많고 조건도 많아지는 추세였지만 큰 맥락을 파악하는게 제일 중요했습니다.
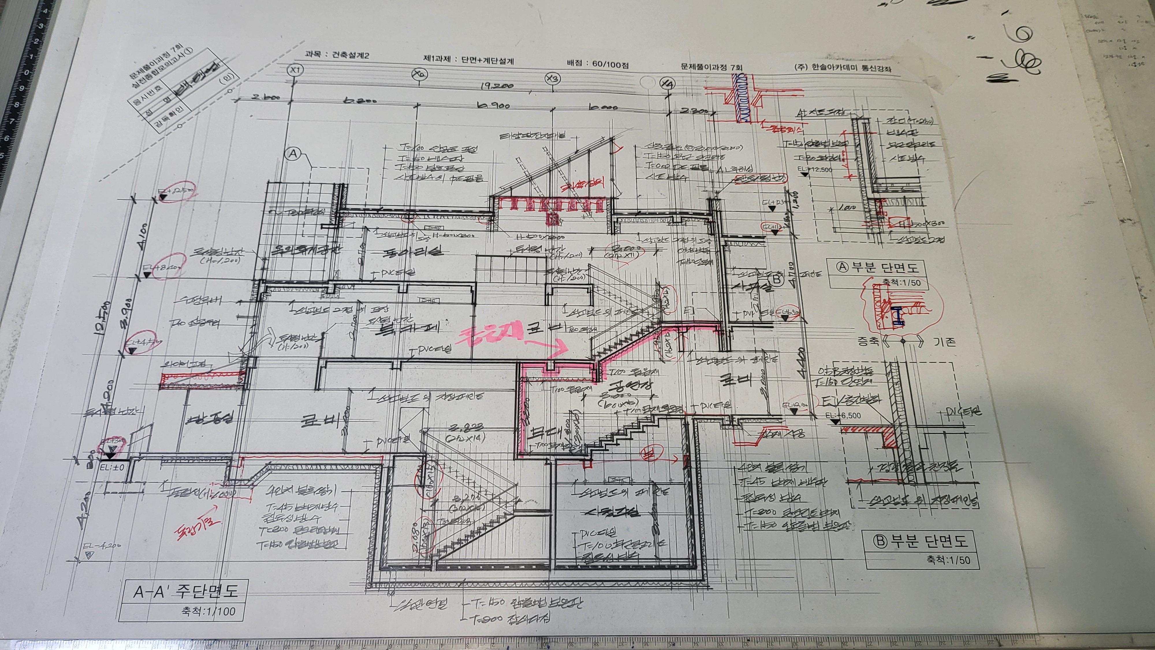
(단면설계) 대충 대충하는 성격을 버려야했습니다. 단순하게 도면만 이쁘고 깔금하고 마감자재명 등 작도량이 많다고 고득점을 받을 수 없었던거 같습니다. 단면 절취선을 기준으로 레벨, 입면, 마감 등에 대해 꼼꼼하게 체크하고 색깔별로 달리 표현해서 작도를 하였습니다. 오호영 교수님께서 가단면 없이 바로 작도하는 습관으로 진행하라고 말씀하셨는데, 저는 풀이하는데 너무 놓친게 많아서 사실 힘들었습니다. 처음 가단면을 트레싱지 위에 작도도면 스케일로 작도하다 조금씩 그 크기를 줄여갔습니다. 가단면에 표현할 내용을 조금씩 줄여 나갔습니다. 지속적인 연습의 연습을 통해 주먹만한 크기의 가단면을 완성할 수 있었고 가단면에도 색깔을 입혀서 본작도를 시작하였습니다. 저는 레벨를 파악해야하는 문제는 가단면 없이는 힘들었기에 문제를 보면서 가단면 량을 조절해 나갔습니다. 속도로 차츰 빨라지기 시작했고 마감재 기입시에는 일부 가선없이 프리핸드로 보조선을 추출하여 기입하였습니다. 작도가 약한 저는 타이머를 가지고 미친 듯 기계처럼 작도하는 연습을 많이 했습니다.
(구조설계) 제일 자신 없던 과목이라 힘들었습니다. 구조문제는 문제풀이 보다 일단 이론 공부에 많은 시간을 투자한 거 같습니다. 이춘호 교수님의 이론 강의를 정말 여러번 본거 같습니다. 구조적 이론이 바탕이 되고 나서야 문제풀이가 눈에 들어오기 시작하였습니다. 역시나 기출문제의 중요성에 대해서는 두말 할 필요도 없는 거 같습니다. 기출문제를 풀면서 나름 오답노트를 작성하고 메모를 해갔습니다. 노트 1페이지에 1개의 문제풀이를 요약해서 자주 익혔고 모를 경우 다시 해설을 살펴가면서 공부했습니다.
ㅇ 시험을 마치며 공부하는 예비 건축사분들께 하고 싶은말...
저처럼 긴 시간 공부하는 건 바람직하지 않다고 생각합니다. 목표를 세우셨으면 최소 2~3년 안에 마무리 할 수 있도록 스케쥴을 잘 짜서 공부하는 게 제일 중요한 거 같습니다. 특히, 혹자 공부 할려고 생각하신다면 더 많은 시간이 필요하고 더디기 때문에 꼭 학원을 추천하고 싶습니다. 최소한 시간과 공간의 제약이 있으시다면 온라인 강의라도 꼭 꼭 수강하시길 권장합니다. 특히 직장을 다니시면서 공부하시는 분들께는 수강신청이 필수 인거 같습니다.
너무 긴 시간 공부하고 나서 뒤돌아 보니 많은 후회가 남습니다. 흔들릴 때, 나태해진 저를 바라보면서 다시 돌아간다면 ‘할 수 있다’ 자기 최면을 걸어 더욱 노력할 거 같습니다. 학원 강사님들을 믿고 따라 가시길 바랍니다. 그 동안 학원강의에 열정을 다 해주신 여러 강사님들께 감사의 마음을 글로나마 전합니다. 정말 정말 감사합니다.
이하는 동안 작도한 도면을 몇 개 스크랩 해서 올립니다.(틀려도 좋으니 먼저 풀어보고 답안을 보며 맞춰가는 연습을 많이 했습니다.)
|
|||||||||||||||||||||||||||||
| 이전글 | 투자한 시간과 노력은 배신하지 않습니다! |
|---|---|
| 다음글 | 자기만의 공부 방법을 찾아야 한다! |